スケトレメモ おいしい自然

モデュロールと自在さ
スケッチ載せるのやめとけば良かったと若干後悔しつつ、スケトレなのでこのまま続けます。続けてるうちにうまくなるかもしれないし。
「おいしい自然」は自然に含まれる意味をどう知覚させるか、と自然の中にある情報・不変項をどう抽出し再構成するか、ということが課題となる。
担当したクセナキスが波動ガラス面と名付けたラ・トゥーレットの回廊のガラス面は、モデュロールを利用したものだが、モデュロールも自然の中の不変項を抽出したものと言えるように思う。
コルビュジェは基準線(レギュラトゥール)による構成から、寸法(モデュロール)による関係性の構築へと移行したことにより、より自由に振る舞えるようになったが、そこにはより自然に近い秩序が生まれており、そこにより大きな知覚の悦びが発生しているように思う。
実績より

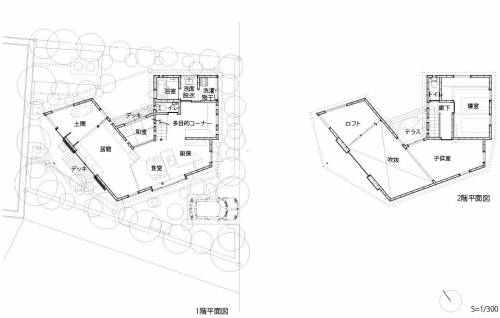
ここでは建物の最上部にトップライトと東向きの窓を設けるとともに、間仕切り上部をガラスで構成することによって、太陽の進行に沿って室内に光が回り込むことを考えた。


これは、雑木林に囲まれた生活、というコンセプトの敷地に対して、シンプルにいろいろな方向に緑が見えるようにすることで応えた住宅である。(撮影時はまだ植栽が完了していなかったので緑はあまり見えていないが)


ここでは限られた予算の中で、宿泊施設にどのような象徴性を与えるかを考えた。モッチョム岳を背後に控える宿泊棟は垂直性をベースにした構成に、海側の母屋は軒を抑えた控えめな表現とした。
屋久島という自然のなかの構成に何かしら反応するものにしたかった。



ここでは、途中壁を白にしたいという要望もあったが、海に向かった時に建物は背後に退くようなものにしないとその場所の特性を活かせないと考え、海に向かう時に目に入る壁面を黒に、反対側を白にし、屋根と床が水平に外へと伸びていくような構成とした。



これまでは、自然をどう知覚させるか、ということが主題であったが、自然の不変項をどう取り込めるかを考えるための実験として、CADのスクリプトでランダムと擬似1/fゆらぎによるものの比較をしてみた。
ランダムなものは当然規則性はなく、それぞれの要素に重みや固有性は生まれないが、それにゆらぎを与えることでそれぞれの重みに変化が生まれ、固有性もしくは意味の萌芽のようなものが見られる気がする。
自然界のものは、全くランダムというものは考えにくく、その環境の違いによるゆらぎはどこかに現れているはずだ。
コストや手間を考えると、住宅などでどこまで出来るかは分からないけれども、寸法の扱いの中にそういうゆらぎやリズムを与えることはできるはずで、そういったことにもっと意識的に設計を行ってみたい。
スケトレメモ おいしい素材
スケトレメモ おいしい姿勢・音・手触り・味と匂い・見え
言葉
言葉との距離
動態再起論
出会う建築
インセクト
オリケン